「リフォーム空き家」は移住者向けの賃貸住宅です
リフォーム空き家:町が所有者から10年間借り上げ、移住者※に貸し出す物件です。リフォーム空き家を内覧希望の方は、空き家バンク利用者登録が必要となります。
(※移住者とは…遊佐町以外の市区町村に5年以上居住し、定住※の意思をもって転入した者で、かつ転入後5年未満の者。)
(※※定住とは…遊佐町に永住し、または5年以上生活の拠点を置き、かつ、住民基本台帳に記録されること)
入居までのスケジュールは下記のとおりです。
①空き家バンク利用者登録
②物件内覧
③定住住宅空き家利活用住宅(リフォーム空き家)利用申請
④空き家利活用部会で入居者選考
⑤入居者決定
⑥賃貸契約
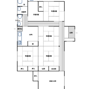
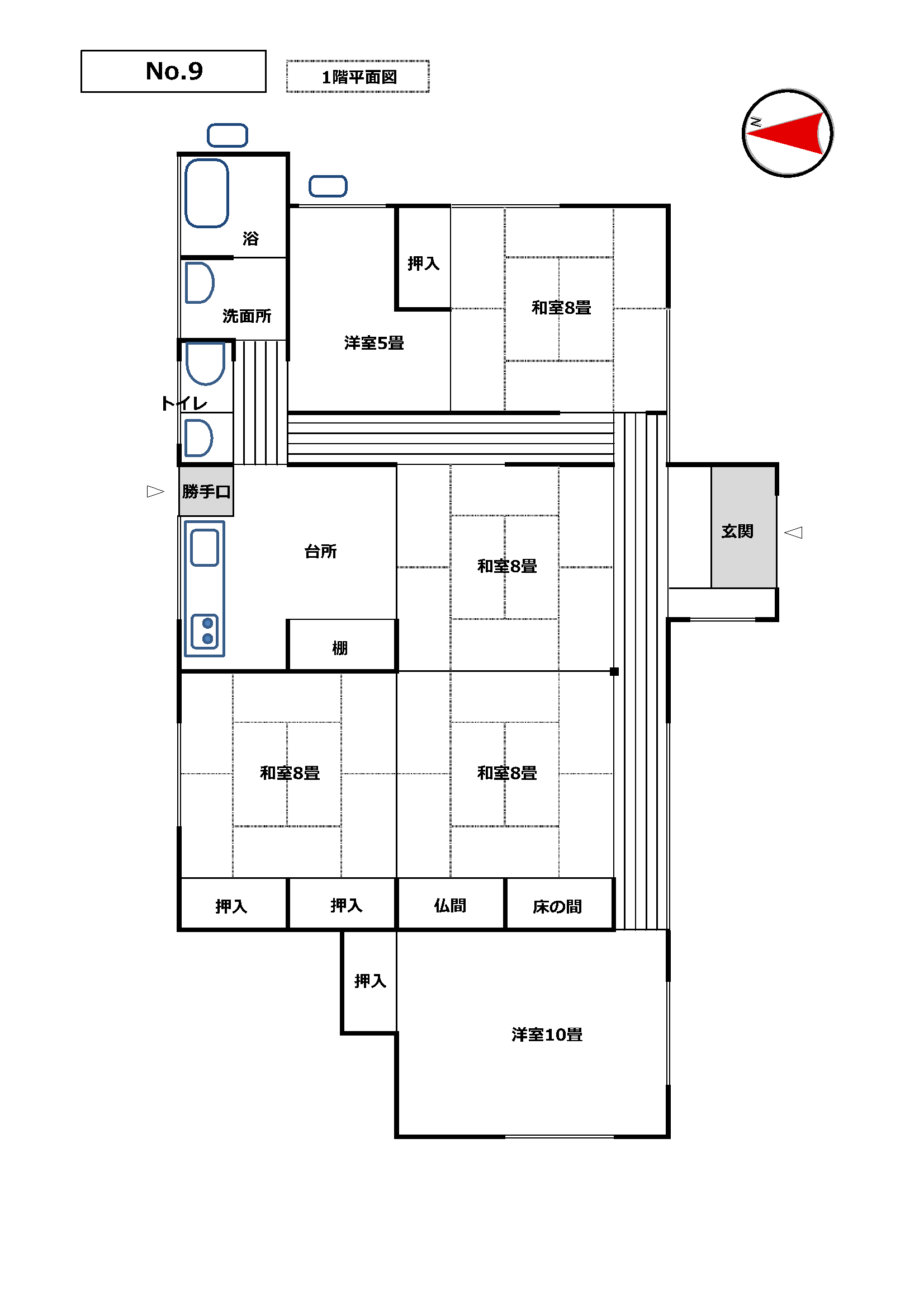
JR遊佐駅から徒歩すぐの便利な立地に加え、人気のコンパクトな平屋の物件です。
物件情報
| 物件番号 | リフォーム空き家第9号 |
|---|---|
| 分類 | 賃貸 |
| 集落 | 駅前二区 |
空き家情報
| 所在 | 遊佐町遊佐字石田 |
|---|---|
| 用途 | 住宅 |
| 構造 | 木造平屋建て |
| 建築面積 | 1階136.30㎡ |
| 延床面積 | 136.30㎡ |
| 建築時期 | 昭和63年建築 |
| リフォーム完了時期 | 平成29年11月 |
敷地情報
| 面積 | 99.17㎡ |
|---|---|
| 駐車面積 | 2台程度(屋根なし) |
| 家庭菜園 | 不可 |
| 附帯物件 | なし |
主要施設への距離
| スーパー | 約300m |
|---|---|
| 学校 | 小学校約1km
中学校約2.3km |
| 病院 | 約300m |
| 役場 | 約500m |
ライフライン
| 水道 | 公共水道接続 |
|---|---|
| 電気 | 電力会社配線 有 |
| ガス | プロパンガス |
| 下水道 | 公共下水道接続済 |
| 家庭雑排水 | 公共下水道接続 |
価格等
| 賃貸 | 50,000円/月 |
|---|---|
| 特記事項 | 間取り: 1階:和室8畳×4、洋室5畳×1、洋室10畳×1、台所、トイレ、浴室、洗面所
・エアコンなし(利用者による取付は可能) ・町の制度内での利用は令和10年1月19日までとなっています。 |
お問い合わせはこちら
【移住全般に関すること】
遊佐町役場企画課定住促進係
0234-28-8257
【空き家に関すること】
空き家移住支援員
0234-72-3981
【お試し移住体験や移住者交流会に関すること】
NPO法人いなか暮らし遊佐応援団
0234-43-6941
遊佐町役場企画課定住促進係
0234-28-8257
【空き家に関すること】
空き家移住支援員
0234-72-3981
【お試し移住体験や移住者交流会に関すること】
NPO法人いなか暮らし遊佐応援団
0234-43-6941














